++Verkauft++Vielseitig nutzbare Gewerbefläche mit Rolltor im Zentrum von Neuss
Ansprechpartner
Eckdaten
| Kaufpreis 149.900 € |
| Adresse 41464 Neuss - Zentrum |
| Nutzfläche ca. 79,50 m² |
| Gesamtfläche ca. 159 m² |
| Lagerfläche ca. 79,50 m² |
Finanzierungsbeispiel
Bei einem Eigenkapital von 20 % beträgt die monatliche Rate ca. .
Finanzierungsrechner öffnen
Finanzierungsrechner
Immobilieninvestition
Finanzierung
davon Zinsen
Diese Finanzierungsberechnung zeigt die modellhafte und unverbindliche Darstellung eines Erwerbes einer selbstgenutzten Immobilie. Grundlage für die Ergebnisse waren Ihre persönlichen Angaben sowie das geltende Steuerrecht zum Zeitpunkt der Erstellung des Immobilienrechner-Moduls. Eine Gewähr kann wegen möglicher Rechenfehler, Änderungen der Steuergesetze, Zinskonditionen und Ihrer persönlichen Einkommens- und Vermögensverhältnisse nicht übernommen werden. Nicht berücksichtigt wurden in dieser Darstellung die Mietnebenkosten oder Wohngelder sowie ggf. Bauzeitzinsen. Diese Berechnung ersetzt keine Steuer- oder Rechtsberatung. Sie ist freibleibend und ohne Gewähr. Wir bitten um Verständnis, dass daher keine Haftung übernommen werden kann.
Beschreibung
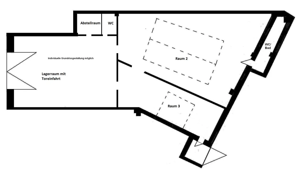
Bei diesem Objekt handelt es sich um eine freiwerdende multifunktionale Gewerbefläche mit Toreinfahrt im Herzen von Neuss. Die rund 159 m² große Lager- und Arbeitsfläche befindet sich in einem gepflegten Mehrfamilienhaus von 1927. Sie erreichen die ebenerdige und moderne Fläche durch ein Rolltor. Die Anfang 2000 umfangreich modernisierten Räumlichkeiten lassen eine individuelle Aufteilung- und Nutzungsmöglichkeit zu. Zusätzlich zu den Gewerberäumen verfügt die Einheit über zwei separate Toiletten und eignen sich bestens für die Kombination Arbeiten, Lagern und Verwalten unter einem Dach. Zögern Sie nicht und ändern Sie Ihre Visitenkarte.
Sonstiges
Energieausweis: Verbrauchsausweis gültig von: 10.05.2008
Baujahr: 2001
Wir bitten Sie zur zeitnahen Bearbeitung Ihrer Anfrage uns Ihre kompletten Kontaktdaten (Adresse, E-Mail sowie Ihre Telefonnummer) zu übermitteln. Für Ihre Bemühungen und Ihr Verständnis bedanken wir uns im Voraus.
Mit dem Verkauf sind wir allein beauftragt und erhalten mit Abschluss des Kaufvertrages eine Maklerprovision. Der Käuferanteil beträgt 3,57 % inkl. MwSt des Kaufpreises. Die Provision ist verdient, fällig und zahlbar mit Abschluss des notariellen Kaufvertrages.
Alle Angaben beruhen auf den Aussagen und Unterlagen des Eigentümers.
Ausstattungsbeschreibung
Die Anfang 2000 umfangreiche modernisierte Fläche ist ausgestattet mit einem neuwertigen Fliesenboden, zwei separate Toiletten. Beheizt wird die helle und freundliche Fläche über die eigene Gas-Etagen-Heizung.
Lagebeschreibung
Neuss ist die größte Stadt des Rhein-Kreises Neuss.
Die Stadt hat viele Gesichter. Mit ihrer über 2000 Jahre alten Geschichte ist sie lebendig und modern, liebenswürdig, beschaulich und teilweise auch dörflich traditionell.
Die Gewerbefläche liegt verkehrsgünstig am Rand des Stadtzentrums. Bushaltestellen befinden sich in unmittelbarer Nähe, ebenso der Stadtgarten und der Rosengarten. Beide Gärten bieten Ihnen die Möglichkeiten für erholsame und entspannende Spaziergänge.
Der Hauptbahnhof und das Stadtzentrum liegen rund 1,5 km entfernt. Das Stadtzentrum bietet Ihnen alle Einkaufsmöglichkeiten für den täglichen Bedarf und darüber hinaus .Es ist in wenigen Gehminuten erreichbar.
Durch die Nähe zum Hauptbahnhof haben Sie hervorragende Anbindungen an das Bahnnetz nach Düsseldorf, Wuppertal und Köln.
Über innerstädtische Straßen erreichen Sie in etwa 15 Minuten die Autobahnen A 46, A 52 sowie die A 57. Sie führen in die Richtungen Köln, Wuppertal und Niederrhein.
Das Stadtzentrum von Düsseldorf erreichen Sie mit dem Auto in ca. 20 Minuten.
Käuferprovision
3.57 %
Ausstattung
| Kategorie Standard |
| Baujahr 1927 |
| Befeuerungsart Gas |
| Boden Fliesen |
| Heizungsart Zentralheizung |
| Modernisierungen 2000 |
| Provisionspflichtig |
| verfügbar ab 01.01.2016 |
| Zustand modernisiert |
Energieverbrauchsausweis
| Endenergieverbrauch 107 kWh/(m²*a) |
| Befeuerungsart Gas |
| Heizungsart Zentralheizung |
| Baujahr (Energieausweis) 2001 |
| Gültig bis 10.05.2018 |
| Energieausweis 2008 |
| Energieausweis Ausstellungsdatum 2008-05-10 |
0200400+
Zurück zu den Immobilienangeboten
Kontakt aufnehmen
++Verkauft++Vielseitig nutzbare Gewerbefläche mit Rolltor im Zentrum von Neuss